TỦ HÚT BỤI AC TOWER
I. Tủ hút bụi xử lý mùi (AC Tower)
Lọc mùi trong quá trình sản xuất luôn là điều vô cùng cần thiết trong các ngành công nghiệp hiện nay. Bạn đang loay hoay tìm giải pháp để khắc phục vấn đề mùi phát sinh thì tủ hút bụi xử lý mùi (AC Tower) sẽ là giải pháp tối ưu giúp bạn giải quyết triệt để vấn đề đó.
Mùi hôi xuất hiện trong các môi trường làm việc của khu công nghiệp, khu chế biến khu chế xuất hoặc các nhà máy lớn,… là nguyên nhân trực tiếp gây nên tình trạng ô nhiễm môi trường, ảnh hưởng đến sức khỏe và năng suất làm việc. Chính vì thế để đảm bảo an toàn lao động, không khí trong lành trong quá trình làm việc và sản xuất, đòi hỏi phải có phương án xử lý mùi hiệu quả.
![]()
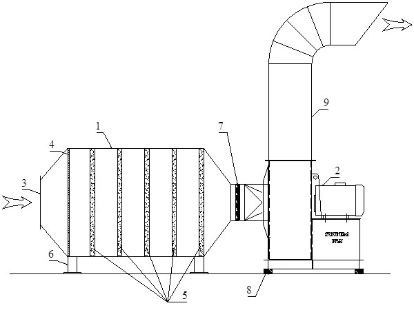
1. Cấu tạo tủ hút bụi xử lý mùi AC Tower: gồm 9 bộ phận
– Vỏ buồng lọc khí.
– Quạt ly tâm hút khí.
– Miệng kết nối với đường ống thu khí.
– Tấm lọc thô lọc bụi.
– Tấm lọc Carbon.
– Chân đỡ buồng lọc.
– Khớp nối mềm.
– Giảm chấn.
![]()
2. Nguyên lý hoạt động tủ hút bụi xử lý mùi AC Tower:
Nguyên vật liệu chính của tủ hút bụi xử lý mùi AC Tower là Carbon hạt
Các hợp chất hữu cơ và mùi khác nhau được đưa vào bên trong tủ nơi chứa hạt carbon được hấp thụ và loại bỏ về mặt vật lý và hóa học.
Đường ống thu khí được bố trí tới tận các vị trí máy phát sinh khí thải, ống chính kết nối vào miệng hút của buồng lọc.
Quạt hút tạo lưu lượng áp suất để thu khí thải về buồng lọc thông qua hệ thống đường ống.
Khí thải lần lượt đi qua lớp lọc thô để lọc bụi bẩn, sau đó đi qua các lớp lọc Carbon để khử mùi.
3. Bản vẽ kỹ thuật tủ hút bụi xử lý mùi AC Tower:
![]()
4. Thông số kỹ thuật tủ hút bụi xử lý mùi AC Tower:
![]()
5. Ứng dụng của tủ hút bụi xử lý mùi AC Tower:
Tủ hút bụi xử lý mùi (AC Tower) hiện được sử dụng rộng rãi cho các nhà máy sản xuất linh kiện điện tử, phòng in, hàn, sơn, …
Đảm bảo môi trường làm việc an toàn, đảm bảo sức khỏe người lao động thì việc xử lý khí thải phải được đặt lên hàng đầu. Do đó việc trang bị hệ thống xử lý mùi cũng như khí thải để bảo vệ môi trường cũng như phát triển kinh tế là việc vô cùng cần thiết.
Nếu bạn đang có nhu cầu thiết kế hệ thống xử lý mùi, xử lý khí thải, hãy liên hệ ngay với chúng tôi.